Trilocale in vendita

Parma, Via Valerio Zurlini - Corcagnano
€ 215.000
3 locali 3 locali
95 Mq 95 Mq
2 bagni 2 bagni

Trilocale in vendita

Parma, Via Valerio Zurlini - Corcagnano

Descrizione annuncio

CORCAGNANO:

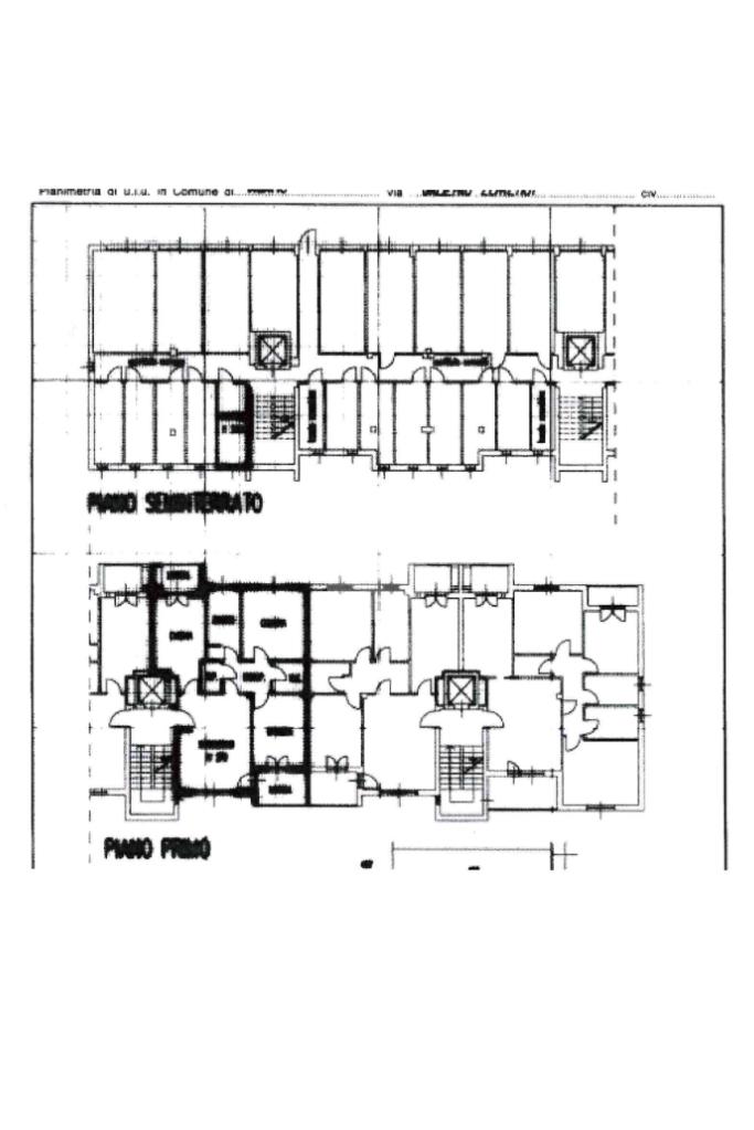
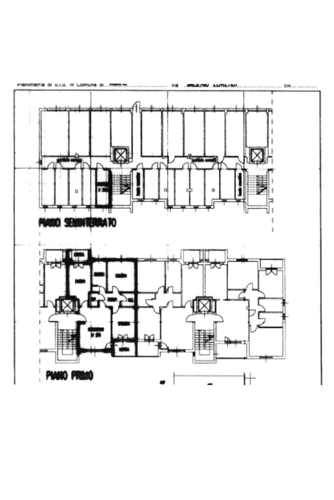
In elegante palazzina edificata nei primi anni 2000 e completamente riqualificata nel 2023 grazie al Superbonus 110%, proponiamo in vendita un comodo e ampio trilocale in classe energetica A1, ideale per chi desidera comfort, efficienza e tranquillità senza rinunciare alla comodità dei servizi.

L’immobile si trova al primo piano oltre il rialzato, servito da ascensore, all’interno di un contesto residenziale curato e silenzioso, circondato da un ampio giardino condominiale con pozzo comune per l’irrigazione.

Varcando la porta d’ingresso si viene accolti da un luminoso soggiorno con accesso diretto alla loggia, uno spazio perfetto per rilassarsi all’aperto. La cucina è ampia e abitabile, anch’essa dotata di una loggia privata che garantisce praticità e uno sfogo esterno riservato. Un comodo disimpegno conduce alla zona notte, composta da una camera matrimoniale e da una camera singola di generose dimensioni, la cui loggia è comunicante con quella del soggiorno, creando una piacevole continuità tra gli ambienti e una doppia possibilità di accesso allo spazio esterno.

I bagni sono due: il principale, finestrato, è completo di vasca e doccia, mentre il secondo è cieco, ideale come bagno di servizio o lavanderia. Completa la zona notte un funzionale ripostiglio che aggiunge ulteriore praticità e ordine alla casa.

A completare la proprietà troviamo una cantina, un box auto privato e un posto auto interno assegnato, elementi che assicurano comodità e valore aggiunto.

Nel prezzo, per chi lo desidera, è incluso l’arredamento completo della cucina e dei bagni, oltre a due split con motore inverter, rendendo l’immobile una soluzione pronta da vivere fin da subito.

Un’abitazione ideale per famiglie o per chi cerca spazi generosi, efficienza energetica e qualità della vita in un contesto riservato, verde e ben servito.

Mostra tutto

Nelle vicinanze

Scuole Scuole
Scuola Elementare
200 m
Farmacia Farmacia
Farmacia
180 m
Ristoranti Ristoranti
Trattoria del Grillo
2,1 Km
Scarica
3,0 Km
Mostra tutto

Caratteristiche

Rif.:
61184253
Piano:
1 di 2 con ascensore (Piano medio)
Box:
1
Posti auto:
1
Balconi:
2
Camere da letto:
2
Mostra tutto
Prezzo Prezzo
€ 215.000
Rata mutuo Rata mutuo
€ 1.019 / mese
Spese annue Spese annue
€ 800
Proponi il tuo prezzoProponi il tuo prezzo

Classe Energetica

A1
A1
A1
A1
A1
A1
A1
A1
A1
EP globale non rinnovabile:
58.32 kW h/m² anno
EP invernale del fabbricato:
EP estiva del fabbricato:
Anno di costruzione:
2000
Riscaldamento:
Autonomo
Tipo impianto:
A radiatori
Tipo alimentazione:
Metano

Ti interessa visionare l'immobile?

Fissa un appuntamento  Fissa un appuntamento

Richiedi informazioni

Clicca su Leggi per aprire l'informativa
* Questi campi sono obbligatori

Calcola il tuo mutuo

Semplice e senza impegno
Anticipo

( % )
Mutuo

( % )

pochi semplici passi

inserisci i tuoi dati
Questionario completato
Grazie per aver richiesto un appuntamento senza impegno con un nostro Consulente del Credito e Assicurativo.

Hai inserito correttamente tutti i dati necessari e a breve riceverai una e-mail con un link da convalidare per inviare i tuoi dati.
Affiliato
My Way Immobiliare Srl
Via Vittorio Emanuele II, 19 43038 Sala Baganza (PR)

Il nostro staff


  • Erica Serra
    Affiliata

  • Yasmina Macovei
    Coordinatrice
Via Vittorio Emanuele II, 19 43038 Sala Baganza (PR)
Zona: Sala Baganza-Felino-Corcagnano-Carignano-Calestano-Marzolara
Mostra su mappa
Orari: Dal lunedì al venerdì: 9:00 - 13:00 / 15:00 - 20:00 Sabato: 9:00 - 17:00
Affiliato
My Way Immobiliare Srl
Via Vittorio Emanuele II, 19 43038 Sala Baganza (PR)

2026 Tecnocasa Franchising S.p.A. - P. IVA 08365160152 - Via Monte Bianco 60/A 20089 Rozzano (MI). Ogni agenzia ha un proprio titolare ed è autonoma. Privacy policy | Policy utilizzo | Cookie policy