Casa indipendente in vendita

Felino, Via Costa - Barbiano
€ 259.000
4 locali 4 locali
171 Mq 171 Mq
1 bagno 1 bagno

Casa indipendente in vendita

Felino, Via Costa - Barbiano

Descrizione annuncio

FELINO - BARBIANO: C’è un luogo dove il silenzio è interrotto solo dai suoni della natura, dove ogni finestra regala uno scorcio di verde e ogni spazio invita a rallentare.

A Barbiano di Felino, in contesto collinare e panoramico, proponiamo in vendita una villa indipendente circondata dal proprio giardino, ideale per chi sogna una casa autentica, lontana dal caos.

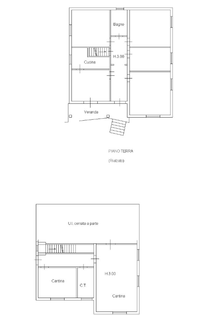
L’ingresso è anticipato da una veranda aperta, perfetta per godersi le giornate all’aria aperta. All’interno gli ambienti sono ampi e ben distribuiti: l’abitazione si sviluppa su un unico livello con ingresso spazioso, cucinotto separato, tinello, comodo soggiorno , tre camere da letto – due matrimoniali e una singola di generose dimensioni – e bagno con vasca.

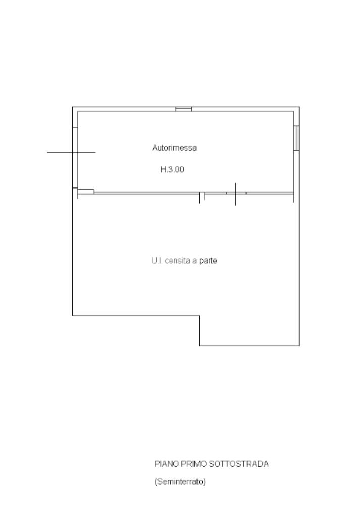
Una scala interna conduce al piano seminterrato, uno spazio versatile e ricco di potenzialità, con due grandi cantine ideali per creare una taverna accogliente o un ulteriore appartamento, oltre a locale termico e autorimessa di 42 mq.

Nel 2015 l’immobile è stato oggetto di interventi strutturali di palificazione, documentati, a garanzia di solidità e sicurezza nel tempo.

Una casa che profuma di tranquillità, perfetta per chi desidera vivere la collina ogni giorno.

Libera subito.

Mostra tutto

Nelle vicinanze

Trasporto pubblico Trasporto pubblico
Trasporto pubblico
2,6 Km
Scuole Scuole
Scuole
2,4 Km
Ristoranti Ristoranti
Antica Trattoria Leoni
990 m
Taverna del Castello
2,3 Km
Al Mulino
2,3 Km
Ristoranti
2,7 Km
Mostra tutto

Caratteristiche

Rif.:
61162136
Piano:
Su più livelli di 2
Totale piani:
2
Box:
1
Posti auto:
4
Balconi:
1
Mostra tutto
Prezzo Prezzo
€ 259.000
Rata mutuo Rata mutuo
€ 1.221 / mese
Spese annue Spese annue
€ 0
Proponi il tuo prezzoProponi il tuo prezzo

Classe Energetica

G
G
G
G
G
G
G
G
G
EP globale non rinnovabile:
576.16 kW h/m² anno
EP invernale del fabbricato:
EP estiva del fabbricato:
Anno di costruzione:
1970
Riscaldamento:
Autonomo
Tipo impianto:
A radiatori
Tipo alimentazione:
Gasolio

Ti interessa visionare l'immobile?

Fissa un appuntamento  Fissa un appuntamento

Richiedi informazioni

Clicca su Leggi per aprire l'informativa
* Questi campi sono obbligatori

Calcola il tuo mutuo

Semplice e senza impegno
Anticipo

( % )
Mutuo

( % )

pochi semplici passi

inserisci i tuoi dati
Questionario completato
Grazie per aver richiesto un appuntamento senza impegno con un nostro Consulente del Credito e Assicurativo.

Hai inserito correttamente tutti i dati necessari e a breve riceverai una e-mail con un link da convalidare per inviare i tuoi dati.
Affiliato
My Way Immobiliare Srl
Via Vittorio Emanuele II, 19 43038 Sala Baganza (PR)

Il nostro staff


  • Erica Serra
    Affiliata

  • Yasmina Macovei
    Coordinatrice
Via Vittorio Emanuele II, 19 43038 Sala Baganza (PR)
Zona: Sala Baganza-Felino-Corcagnano-Carignano-Calestano-Marzolara
Mostra su mappa
Orari: Dal lunedì al venerdì: 9:00 - 13:00 / 15:00 - 20:00 Sabato: 9:00 - 17:00
Affiliato
My Way Immobiliare Srl
Via Vittorio Emanuele II, 19 43038 Sala Baganza (PR)

2026 Tecnocasa Franchising S.p.A. - P. IVA 08365160152 - Via Monte Bianco 60/A 20089 Rozzano (MI). Ogni agenzia ha un proprio titolare ed è autonoma. Privacy policy | Policy utilizzo | Cookie policy