Quadrilocale in vendita

Calestano, Via Don Luigi Consigli - Marzolara
€ 179.000
4 locali 4 locali
110 Mq 110 Mq
2 bagni 2 bagni

Quadrilocale in vendita

Calestano, Via Don Luigi Consigli - Marzolara

Descrizione annuncio

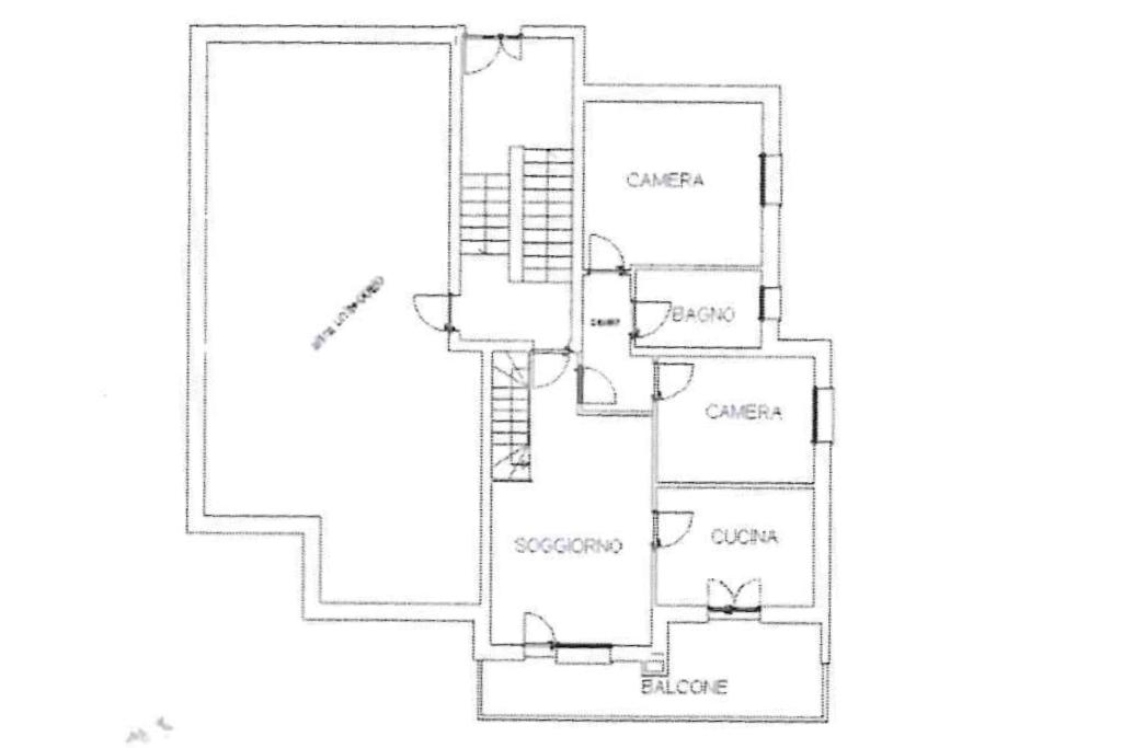
MARZOLARA: In una delle zone più tranquille e ricercate di Marzolara, immersa nel verde e con una piacevole vista panoramica, proponiamo in vendita un quadrilocale su due livelli che unisce comfort, spazio e riservatezza. La posizione è strategica: contesto residenziale silenzioso, ma allo stesso tempo comodo per raggiungere rapidamente Felino e Sala Baganza.

L’appartamento si trova in una palazzina recente edificata nel 2008 composta da sole quattro unità, un dettaglio che fa davvero la differenza in termini di privacy e spese condominiali minime. La casa è in ottime condizioni, pronta per essere abitata da subito, senza alcun lavoro da prevedere.

Al piano rialzato si viene accolti da un soggiorno molto luminoso, con accesso diretto al grande balcone abitabile, uno spazio esterno vivibile e perfetto per pranzi, cene o momenti di relax. La cucina separata, funzionale e ben organizzata, affaccia sullo stesso balcone. La zona notte del piano ospita una camera matrimoniale di generose dimensioni, una camera doppia e un bagno finestrato con vasca idromassaggio, ideale per il massimo comfort quotidiano.

Tramite un acomoda scala interna si accede al piano seminterrato che amplia ulteriormente le potenzialità dell’abitazione grazie a una terza camera matrimoniale, a un secondo bagno con doccia e lavanderia e soprattutto al collegamento diretto con l’ampio box auto, una comodità rara e molto apprezzata.

A completare la proprietà, una porzione di verde o cortile privato, staccata dall’abitazione, perfetta come spazio esclusivo da vivere all’aperto.

La soluzione è inoltre dotata di infissi in legno con doppio vetro, due condizionatori, porta blindata e impianto di allarme.

Una soluzione completa e ben distribuita, ideale per famiglie o per chi cerca una casa con spazi versatili, in un contesto recente, riservato e di qualità.

Mostra tutto

Nelle vicinanze

Bar Bar
Bar
630 m
Ristoranti Ristoranti
Blue River
290 m
Mostra tutto

Caratteristiche

Rif.:
61175034
Piano:
Rialzato di 2
Totale piani:
2
Box:
1
Posti auto:
2
Balconi:
1
Mostra tutto
Prezzo Prezzo
€ 179.000
Rata mutuo Rata mutuo
€ 831 / mese
Spese annue Spese annue
€ 200
Proponi il tuo prezzoProponi il tuo prezzo

Classe Energetica

F
F
F
F
F
F
F
F
F
EP globale non rinnovabile:
180.00 kW h/m² anno
EP invernale del fabbricato:
EP estiva del fabbricato:
Anno di costruzione:
2008
Riscaldamento:
Autonomo
Tipo impianto:
A radiatori
Tipo alimentazione:
Metano

Ti interessa visionare l'immobile?

Fissa un appuntamento  Fissa un appuntamento

Richiedi informazioni

Clicca su Leggi per aprire l'informativa
* Questi campi sono obbligatori

Calcola il tuo mutuo

Semplice e senza impegno
Anticipo

( % )
Mutuo

( % )

pochi semplici passi

inserisci i tuoi dati
Questionario completato
Grazie per aver richiesto un appuntamento senza impegno con un nostro Consulente del Credito e Assicurativo.

Hai inserito correttamente tutti i dati necessari e a breve riceverai una e-mail con un link da convalidare per inviare i tuoi dati.
Affiliato
My Way Immobiliare Srl
Via Vittorio Emanuele II, 19 43038 Sala Baganza (PR)

Il nostro staff


  • Erica Serra
    Affiliata

  • Yasmina Macovei
    Coordinatrice
Via Vittorio Emanuele II, 19 43038 Sala Baganza (PR)
Zona: Sala Baganza-Felino-Corcagnano-Carignano-Calestano-Marzolara
Mostra su mappa
Orari: Dal lunedì al venerdì: 9:00 - 13:00 / 15:00 - 20:00 Sabato: 9:00 - 17:00
Affiliato
My Way Immobiliare Srl
Via Vittorio Emanuele II, 19 43038 Sala Baganza (PR)

2026 Tecnocasa Franchising S.p.A. - P. IVA 08365160152 - Via Monte Bianco 60/A 20089 Rozzano (MI). Ogni agenzia ha un proprio titolare ed è autonoma. Privacy policy | Policy utilizzo | Cookie policy